Bí quyết xây nhà cấp 4 giá dưới 1 tỷ đẹp tiện nghi
Bạn đang ấp ủ ước mơ về một ngôi nhà của riêng mình nhưng ngân sách lại khá hạn chế? Đừng lo lắng! Với những mẫu nhà cấp 4 giá dưới 1 tỷ đồng, việc sở hữu tổ ấm tiện nghi, hiện đại hoàn toàn nằm trong tầm tay bạn. Hãy cùng khám phá giải pháp thông minh này nhé!
Ngân sách dưới 1 tỷ đồng có xây nhà được không?
Với ngân sách dưới 1 tỷ đồng, bạn hoàn toàn có thể xây dựng một căn nhà cấp 4 đẹp và tiện nghi nếu biết cách tính toán hợp lý và tối ưu chi phí.
Trước hết, hãy chọn thiết kế đơn giản, ưu tiên các hình khối cơ bản, ít chi tiết trang trí rườm rà. Kiểu nhà vuông vắn, mái đơn giản sẽ tiết kiệm được cả chi phí vật tư và nhân công.
Thứ hai, cần tối ưu công năng sử dụng. Thiết kế vừa đủ với nhu cầu gia đình như 1 phòng khách, bếp, phòng ăn và 2–3 phòng ngủ là lựa chọn hợp lý. Có thể sử dụng không gian mở để tạo cảm giác thoáng mà vẫn tiết kiệm xây tường.
Cuối cùng, hãy chọn vật liệu xây dựng phù hợp với ngân sách. Không cần dùng vật liệu đắt tiền – chỉ cần đảm bảo chất lượng và sẵn có tại địa phương. Ví dụ như mái tôn hoặc mái thái đơn giản sẽ giúp giảm chi phí hiệu quả.
>>> Xem thêm tại: Gợi ý mẫu vách ngăn cầu thang gỗ sang trọng, tinh tế
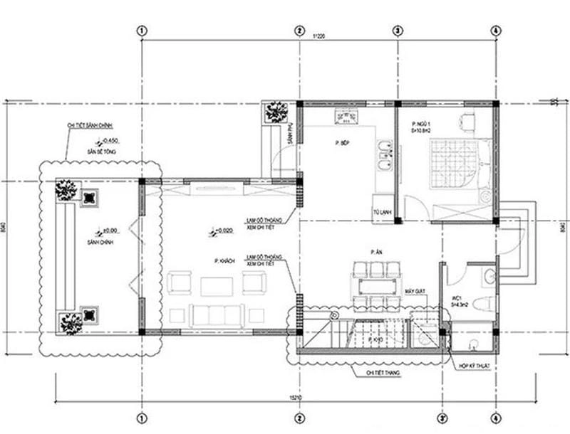
Các mẫu nhà đẹp với chi phí dưới 1 tỷ đồng
 
  
  
  
  
  
  
  
  
  
  
  
  
  
  
  
  
  
  
  
  
  
  
  
  
  
  
  
  
  
 >>> Xem thêm tại: Top mẫu vách ngăn cầu thang đẹp hiện đại 2025
Các yếu tố cần xem xét khi xây nhà dưới 1 tỷ đồng
Để đảm bảo có một nhà cấp 4 giá dưới 1 tỷ đúng như mong muốn mà không phát sinh chi phí quá nhiều, bạn cần xem xét kỹ lưỡng các yếu tố sau đây.
Diện tích và vị trí xây dựng
Diện tích xây dựng là yếu tố lớn nhất ảnh hưởng đến tổng chi phí. Với ngân sách dưới 1 tỷ, bạn nên cân nhắc xây dựng nhà cấp 4 với diện tích vừa phải, khoảng 60-100m² tùy theo mức độ hoàn thiện. Đất càng lớn thì chi phí móng và kết cấu có thể tăng theo.
Vị trí xây dựng cũng quan trọng. Nếu đất ở khu vực xa trung tâm, nông thôn, chi phí nhân công và vật liệu thường rẻ hơn. Ngược lại, ở các thành phố lớn, chi phí sẽ cao hơn đáng kể. Hãy khảo sát giá cả thị trường tại khu vực bạn định xây.
Phong cách kiến trúc và thiết kế
Như đã đề cập, phong cách kiến trúc đơn giản, hiện đại hoặc tối giản là lựa chọn tối ưu cho nhà cấp 4 giá dưới 1 tỷ.
- Mái: Ưu tiên mái tôn, mái thái hoặc mái bằng đơn giản.
- Mặt tiền: Hạn chế trang trí cầu kỳ, tập trung vào đường nét thanh thoát, vật liệu dễ tìm như sơn nước, gạch ốp rẻ tiền.
- Nội thất: Chọn đồ nội thất cơ bản, đa năng, không cần quá sang trọng.
Lựa chọn vật liệu xây dựng
Đây là yếu tố then chốt để kiểm soát chi phí.
- Vật liệu thô: Sử dụng gạch, xi măng, cát, đá phổ biến, có sẵn tại địa phương. Nên mua số lượng lớn từ các nhà cung cấp uy tín để được giá tốt.
- Vật liệu hoàn thiện: Gạch lát nền, sơn tường, thiết bị vệ sinh... có nhiều phân khúc giá. Hãy chọn loại có chất lượng ổn định trong phân khúc tầm trung. Ví dụ, gạch men Ceramic thường rẻ hơn Porcelain hay đá tự nhiên. Sơn nội thất phổ thông thay vì sơn cao cấp.
- Cửa: Ưu tiên cửa sắt, cửa nhôm kính đơn giản hoặc cửa gỗ công nghiệp thay vì cửa gỗ tự nhiên đắt tiền.
Lập dự toán chi phí chi tiết và có phương án dự phòng
Để không bị "vỡ" ngân sách, việc lập dự toán chi phí chi tiết từng hạng mục là bắt buộc. Từ chi phí thiết kế, xin phép xây dựng, vật liệu thô, nhân công, vật liệu hoàn thiện, hệ thống điện nước, cho đến nội thất cơ bản. Luôn có một khoản chi phí dự phòng khoảng 10-15% tổng ngân sách để đối phó với những phát sinh bất ngờ.
Chọn nhà thầu thi công uy tín và giám sát chặt chẽ
Việc tìm một đơn vị thiết kế và nhà thầu thi công uy tín, có kinh nghiệm trong việc xây dựng nhà cấp 4 giá dưới 1 tỷ là vô cùng quan trọng. Họ sẽ giúp bạn:
- Tư vấn thiết kế phù hợp: Đưa ra phương án tối ưu nhất với ngân sách.
- Quản lý vật tư: Hạn chế lãng phí, thất thoát vật liệu.
- Đảm bảo chất lượng: Thi công đúng kỹ thuật, tránh sai sót phải làm lại.
- Tiến độ: Hoàn thành đúng thời hạn, giảm chi phí phát sinh do kéo dài. Hãy ký hợp đồng rõ ràng và thường xuyên giám sát quá trình thi công để đảm bảo mọi thứ đi đúng hướng.
Với những thông tin toàn diện về khả năng xây dựng và các yếu tố cần xem xét, hy vọng bạn đã có đủ kiến thức để kiến tạo nên nhà cấp 4 giá dưới 1 tỷ mơ ước, một tổ ấm đẹp, tiện nghi và hoàn toàn phù hợp với ngân sách của gia đình mình.
 
  02/07/2025
02/07/2025  
 