Mẫu nhà mặt tiền 6m - Tối ưu không gian, đẹp hiện đại
Sở hữu một mẫu nhà mặt tiền 6m tuy không quá rộng nhưng nếu biết cách thiết kế hợp lý sẽ mang đến không gian sống hiện đại, đầy đủ tiện nghi và thẩm mỹ cao, phù hợp với nhà phố đô thị hiện nay.
Đặc điểm của nhà mặt tiền 6m
Nhà mặt tiền 6m là dạng nhà phố phổ biến tại đô thị, phù hợp với những khu đất có chiều ngang vừa phải nhưng vẫn đảm bảo công năng và tính thẩm mỹ.
Đặc trưng nổi bật của mẫu nhà này là cách bố trí không gian theo chiều sâu. Do mặt tiền không rộng, kiến trúc sư thường tận dụng chiều dài mảnh đất để thiết kế các phòng liền mạch, tối ưu ánh sáng và sự thông thoáng.
Về kiến trúc, nhà mặt tiền 6m thường theo phong cách hiện đại, ưu tiên sự đơn giản, tinh tế. Những đường nét gọn gàng kết hợp vật liệu như kính, thép, bê tông... giúp công trình trông cao ráo, sang trọng và bớt cảm giác chật hẹp.
Dù chiều ngang hạn chế, mặt tiền nhà 6m vẫn đủ để tạo điểm nhấn. Các chi tiết như gạch ốp, lam gỗ, ban công, bồn cây được sử dụng khéo léo để tăng tính thẩm mỹ và thể hiện cá tính của gia chủ.
>>> Xem thêm tại: Trang trí mẫu vách tivi phòng khách chuẩn xu hướng mới
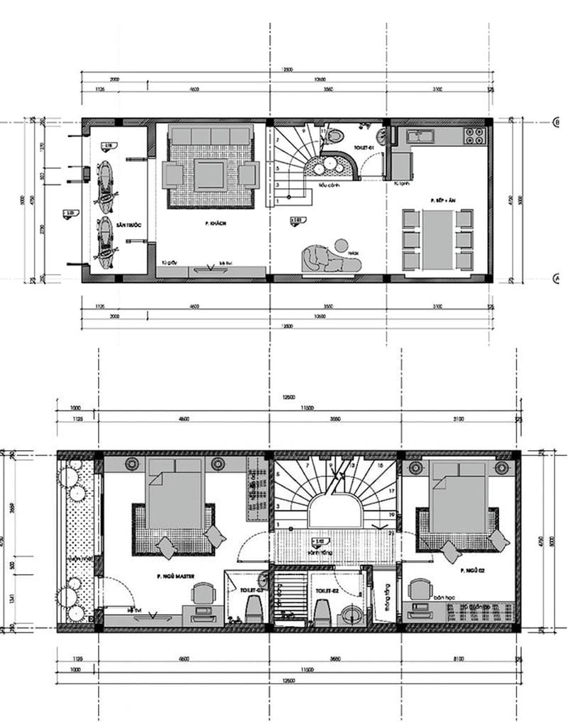
Mẫu nhà mặt tiền 6m đẹp hiện đại được yêu thích nhất
 
  
  
  
  
  
  
  
  
  
  
  
  
  
  
  
  
  
  
  
  
  
  
  
  
  
  
  
  
  
  
  
  
  
 >>> Xem thêm tại: Gợi ý thiết kế nội thất chung cư nhỏ tiện nghi và sang trọng
Lưu ý khi thiết kế và xây dựng mẫu nhà mặt tiền 6m
Để có một mẫu nhà mặt tiền 6m đẹp, công năng và bền vững, bạn cần đặc biệt chú ý đến những yếu tố sau trong quá trình thiết kế và xây dựng:
Tối ưu công năng và bố trí không gian
Với mặt tiền hạn chế, việc bố trí công năng là yếu tố then chốt.
- Phân chia không gian hợp lý: Nên ưu tiên các không gian mở như phòng khách liền bếp ăn để tạo cảm giác rộng rãi, thoáng đãng.
- Tận dụng chiều sâu: Bố trí các phòng chức năng theo chiều sâu, đảm bảo luồng di chuyển thuận tiện.
- Thiết kế đa năng: Sử dụng nội thất thông minh, tích hợp nhiều chức năng để tiết kiệm diện tích. Ví dụ: tủ âm tường, giường có ngăn kéo, bàn ăn gấp gọn.
Ánh sáng và thông gió
Ánh sáng tự nhiên và thông gió là yếu tố cực kỳ quan trọng đối với nhà phố có mặt tiền hẹp.
- Giếng trời: Đây là giải pháp hữu hiệu để đưa ánh sáng và không khí vào sâu bên trong nhà. Có thể đặt giếng trời ở giữa nhà hoặc cuối nhà.
- Cửa sổ và ban công: Tối đa hóa diện tích cửa sổ, sử dụng kính lớn để lấy sáng. Thiết kế ban công hợp lý không chỉ làm đẹp mặt tiền mà còn giúp tăng khả năng thông gió.
- Vật liệu lấy sáng: Sử dụng gạch kính, mái poly lấy sáng cho các khu vực ít tiếp xúc với ánh sáng trực tiếp.
Lựa chọn phong cách và màu sắc
- Phong cách hiện đại, tối giản: Đây là những phong cách rất phù hợp với mẫu nhà mặt tiền 6m vì chúng tập trung vào sự tinh gọn, ít chi tiết rườm rà, giúp không gian trông rộng hơn.
- Màu sắc: Ưu tiên các gam màu sáng, trung tính như trắng, be, xám, xanh nhạt cho tường và trần nhà để tạo cảm giác rộng rãi. Có thể sử dụng các màu đậm hơn làm điểm nhấn cho một mảng tường hoặc đồ nội thất.
Chú trọng mặt tiền và kiến trúc ngoại thất
Mặt tiền là bộ mặt của ngôi nhà. Với chiều rộng 6m, bạn có thể tạo sự độc đáo bằng cách:
- Sử dụng vật liệu đa dạng: Kết hợp các loại vật liệu như gạch ốp, đá tự nhiên, gỗ nhựa, lam nhôm để tạo điểm nhấn và sự khác biệt.
- Ban công, bồn hoa: Thiết kế ban công nhỏ xinh, hoặc các bồn hoa di động để tăng thêm mảng xanh và vẻ đẹp cho mặt tiền.
- Hệ thống cửa: Chọn cửa chính, cửa sổ có thiết kế hiện đại, đồng bộ với phong cách chung.
Yếu tố phong thủy
Khi thiết kế mẫu nhà mặt tiền 6m, bạn cũng nên tham khảo các yếu tố phong thủy về hướng nhà, hướng cửa, vị trí bếp, phòng ngủ để đảm bảo mang lại may mắn và tài lộc cho gia đình. Điều này đặc biệt quan trọng với những người quan tâm đến tâm linh.
Lựa chọn đúng mẫu nhà mặt tiền 6m sẽ giúp bạn tối ưu diện tích, tiết kiệm chi phí và vẫn đảm bảo tiện nghi, thẩm mỹ. Hãy chọn thiết kế phù hợp để tạo nên tổ ấm lý tưởng cho gia đình bạn.
 
  02/07/2025
02/07/2025  
 