Mẫu nhà mái thái cấp 4 - Vẻ đẹp sang trọng cho gia đình
Bạn đang tìm mẫu nhà mái Thái cấp 4 đẹp, hiện đại và tiết kiệm chi phí? Bộ sưu tập dưới đây sẽ mang đến cho bạn nhiều ý tưởng thiết kế ấn tượng, phù hợp diện tích đất và nhu cầu sinh hoạt, tạo nên không gian sống hài hòa, tiện nghi.
Nhà mái Thái cấp 4 là gì?
Nhà mái Thái cấp 4 là loại hình nhà ở chỉ có một tầng trệt, nhưng điểm nhấn đặc biệt nằm ở hệ thống mái. Mái Thái là kiểu mái có độ dốc lớn, thường được xếp chồng lên nhau theo nhiều lớp hoặc nhiều khối, tạo hình chóp nhọn hoặc hình chữ A. Thiết kế này mang lại vẻ đẹp thanh thoát, cao ráo và bề thế cho ngôi nhà, đồng thời tối ưu hiệu quả công năng.
Ưu và nhược điểm của nhà mái Thái cấp 4
Việc lựa chọn xây dựng nhà mái Thái cấp 4 mang lại nhiều lợi ích đáng giá, nhưng cũng có một vài điểm bạn cần cân nhắc kỹ lưỡng.
Ưu điểm nổi bật:
- Tính thẩm mỹ cao: Đây là ưu điểm lớn nhất. Mái Thái mang đến vẻ đẹp sang trọng, thanh thoát, cao ráo và bề thế cho ngôi nhà. Các đường nét dốc tạo cảm giác mềm mại, uyển chuyển, giúp ngôi nhà nổi bật hơn hẳn so với mái bằng hay mái tôn đơn giản.
- Khả năng chống nóng hiệu quả: Với độ dốc lớn, mái Thái giúp không khí bên dưới mái lưu thông tốt hơn, đồng thời giảm diện tích tiếp xúc trực tiếp với ánh nắng mặt trời. Điều này giúp hạn chế truyền nhiệt xuống không gian sống, giữ cho ngôi nhà luôn mát mẻ, đặc biệt vào mùa hè.
- Thoát nước mưa cực tốt: Độ dốc cao giúp nước mưa thoát nhanh chóng, không bị ứ đọng trên mái, từ đó hạn chế tình trạng thấm dột, rong rêu bám bẩn, và kéo dài tuổi thọ cho kết cấu mái.
- Đa dạng về kiểu dáng và phong cách: Mái Thái có thể kết hợp linh hoạt với nhiều phong cách kiến trúc khác nhau, từ mẫu nhà cấp 4 mái Thái hiện đại, tối giản đến nhà cấp 4 mái Thái tân cổ điển, hay thậm chí là nhà cấp 4 mái Thái nông thôn với nét đẹp truyền thống.
- Dễ dàng cải tạo, nâng cấp (nếu có dự định): Mặc dù là nhà cấp 4, nhưng cấu trúc mái Thái thường được xây dựng vững chắc, tạo nền tảng tốt cho việc nâng cấp, thêm gác lửng hoặc thậm chí là nâng tầng trong tương lai nếu có nhu cầu.
- Hợp phong thủy: Trong phong thủy, mái Thái với chóp nhọn được cho là mang lại vượng khí, tài lộc cho gia chủ, đồng thời hóa giải những điều không may mắn.
Nhược điểm cần lưu ý:
- Chi phí xây dựng có thể cao hơn: So với mái bằng hoặc mái tôn đơn giản, chi phí thi công mái Thái thường cao hơn do yêu cầu kỹ thuật phức tạp hơn về hệ khung kèo, vật liệu lợp và nhân công.
- Thời gian thi công có thể kéo dài hơn: Do tính phức tạp trong việc ghép nối các khối mái, thời gian thi công mái Thái có thể lâu hơn một chút so với mái bằng.
- Khó khăn trong việc sửa chữa nhỏ: Nếu xảy ra hỏng hóc hoặc cần sửa chữa, việc tiếp cận và thao tác trên mái Thái có độ dốc cao có thể khó khăn hơn.
- Yêu cầu diện tích mặt tiền phù hợp: Để thể hiện hết vẻ đẹp của mái Thái, ngôi nhà cần có mặt tiền và diện tích đất tương đối rộng để hệ mái không bị cảm giác quá đồ sộ.
>>> Xem thêm: Xu hướng nhà cấp 4 mái lệch đẹp nổi bật năm 2025
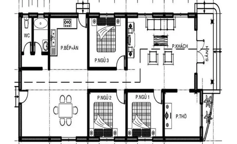
Gợi ý các mẫu nhà đẹp và được ưa chuộng




>>> Xem thêm: Gợi ý mẫu nhà cấp 4 3 gian đẹp chuẩn phong cách Việt
Những lưu ý quan trọng khi xây
Để sở hữu một ngôi nhà mái Thái cấp 4 đẹp, bền vững và tối ưu công năng, bạn cần đặc biệt quan tâm đến những yếu tố sau:
- Tính toán độ dốc mái hợp lý:
- Độ dốc lý tưởng cho mái Thái thường từ 30 độ đến 45 độ, tùy thuộc vào vật liệu lợp và điều kiện khí hậu địa phương. Độ dốc phù hợp giúp thoát nước tốt và đảm bảo thẩm mỹ.
- Kiến trúc sư sẽ tính toán kỹ lưỡng để đảm bảo cân đối với tổng thể ngôi nhà.
- Lựa chọn vật liệu lợp mái chất lượng:
- Ngói: Phổ biến nhất cho mái Thái. Có nhiều loại ngói như ngói đất nung, ngói màu (ngói Fuji, ngói SCG...), ngói sóng hoặc ngói phẳng. Ngói có ưu điểm bền, đẹp, cách nhiệt tốt nhưng chi phí cao hơn.
- Tôn giả ngói: Là giải pháp tiết kiệm chi phí, nhẹ hơn ngói thật, nhưng khả năng cách nhiệt và độ bền không bằng.
- Hãy chọn vật liệu có khả năng chống thấm, chống nóng tốt và bền màu theo thời gian.
- Thiết kế hệ khung kèo vững chắc:
- Hệ khung mái (thường là thép hộp hoặc vì kèo thép) cần được tính toán kỹ lưỡng để chịu lực tốt, đảm bảo sự ổn định của toàn bộ hệ mái và chống chịu được gió bão.
- Các điểm tiếp giáp giữa mái và tường cần được xử lý chống thấm cẩn thận.
- Giải pháp chống thấm và thoát nước:
- Hệ thống máng xối và ống thoát nước cần được thiết kế đủ lớn và dốc để đảm bảo thoát nước nhanh chóng, tránh ứ đọng, gây thấm dột.
- Kiểm tra kỹ các điểm giao giữa các khối mái để đảm bảo không có khe hở.
- Thông gió cho không gian áp mái:
- Tạo các khe thoáng hoặc lỗ thông hơi ở phần mái áp trần để không khí nóng bên dưới mái thoát ra ngoài, giúp ngôi nhà mát mẻ hơn.
- Yếu tố phong thủy (nếu quan tâm):
- Hướng mái, màu sắc mái có thể được xem xét theo tuổi và mệnh của gia chủ để mang lại may mắn, tài lộc.
- Lựa chọn đơn vị thiết kế và thi công uy tín:
- Để có một mẫu nhà mái Thái cấp 4 đẹp và chất lượng, bạn cần tìm đến kiến trúc sư có kinh nghiệm trong thiết kế mái Thái và nhà thầu chuyên nghiệp để đảm bảo thi công đúng kỹ thuật, đúng tiến độ.
Hy vọng những mẫu nhà mái Thái cấp 4 được chia sẻ sẽ giúp bạn dễ dàng chọn lựa thiết kế phù hợp nhất. Hãy biến ý tưởng thành hiện thực để xây dựng không gian sống hiện đại, sang trọng và mang lại sự thoải mái, tiện nghi cho gia đình bạn.