99+ bản vẽ nhà 2 tầng đẹp hiện đại và tối ưu công năng
Bạn đang tìm kiếm bản vẽ nhà 2 tầng để xây dựng tổ ấm lý tưởng? Những thiết kế thông minh, tối ưu diện tích và chi phí sẽ giúp bạn dễ dàng hình dung, lên kế hoạch và thi công hiệu quả hơn.
Ưu điểm của mẫu bản vẽ nhà 2 tầng
Mẫu nhà 2 tầng là lựa chọn lý tưởng cho các gia đình hiện đại nhờ khả năng tối ưu không gian, chi phí và tính thẩm mỹ.
Trước hết, nhà 2 tầng tận dụng tốt diện tích đất, nhất là với những lô đất hẹp hoặc nhỏ. Nhờ xây cao thay vì mở rộng bề ngang, bạn có thể tạo thêm nhiều không gian sinh hoạt mà không cần diện tích nền lớn.
Thứ hai, thiết kế 2 tầng giúp phân chia rõ ràng các khu vực sinh hoạt. Tầng trệt thường dành cho không gian chung như phòng khách, bếp, ăn, còn tầng trên là nơi nghỉ ngơi riêng tư cho các thành viên, đảm bảo sự thoải mái và tiện nghi.
Về mặt thẩm mỹ, nhà 2 tầng cho phép sáng tạo với nhiều phong cách thiết kế. Từ hiện đại đến cổ điển, việc kết hợp ban công, mái ngói, lam che nắng hay vật liệu ốp giúp ngôi nhà nổi bật và ấn tượng hơn.
Cuối cùng, so với nhà cao tầng, nhà 2 tầng có chi phí xây dựng hợp lý, thời gian thi công nhanh, nhưng vẫn đáp ứng đầy đủ công năng cho gia đình đông người.
>>> Xem thêm tại: Trang trí mẫu vách tivi phòng khách chuẩn xu hướng mới
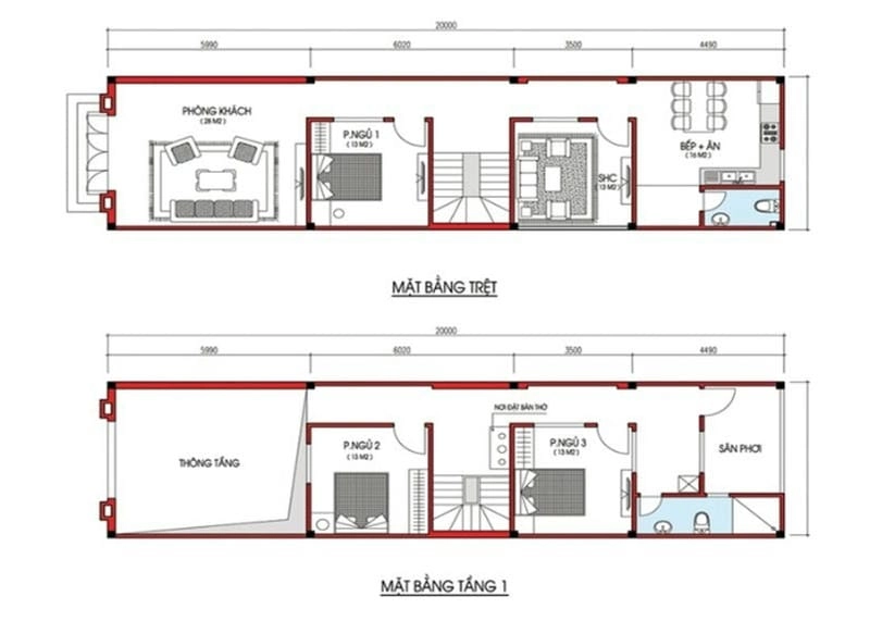
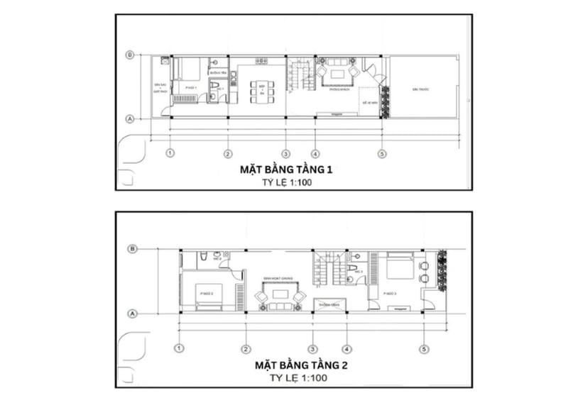
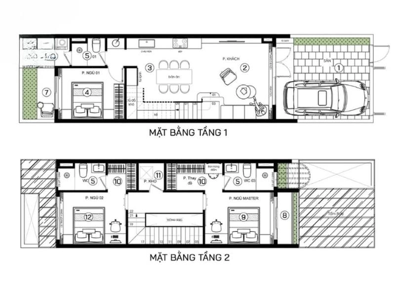
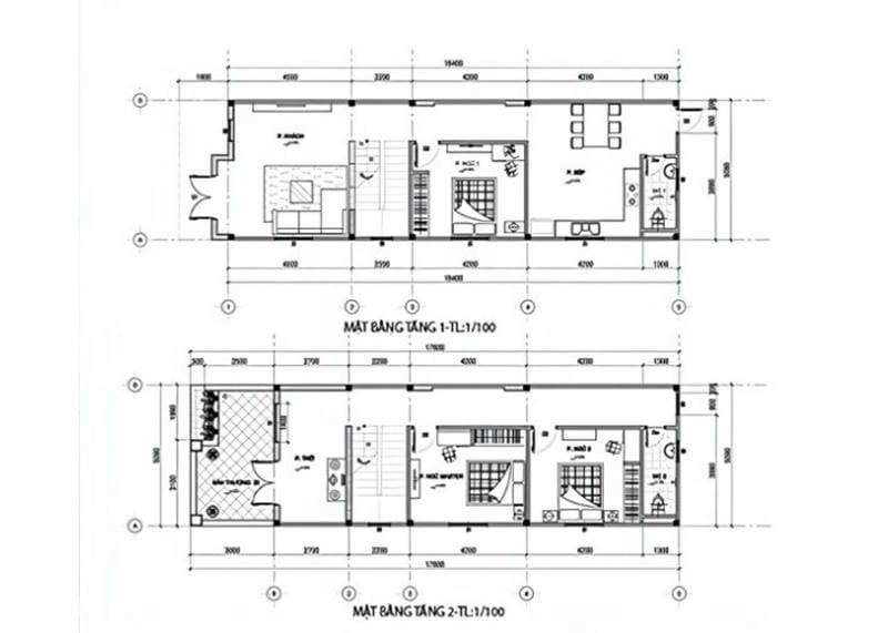
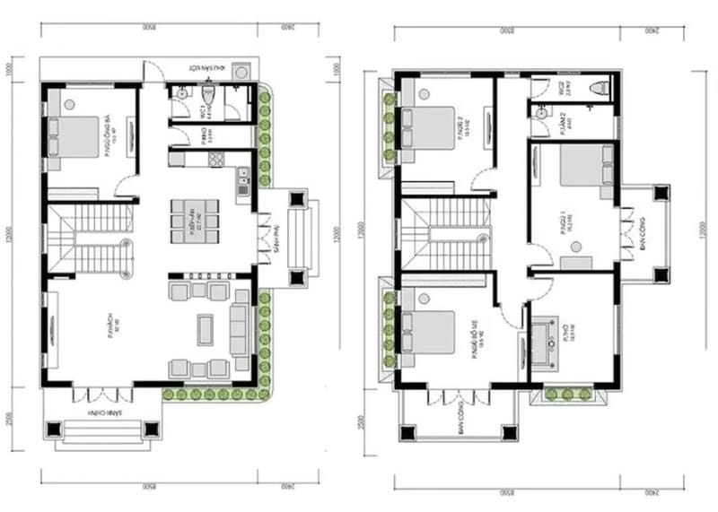
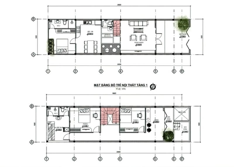
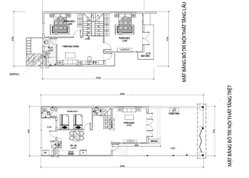
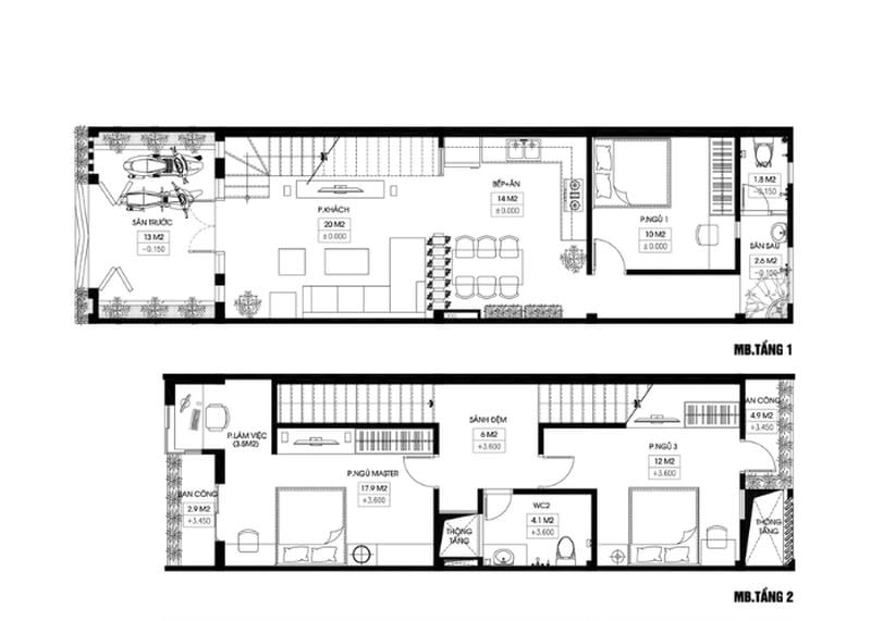
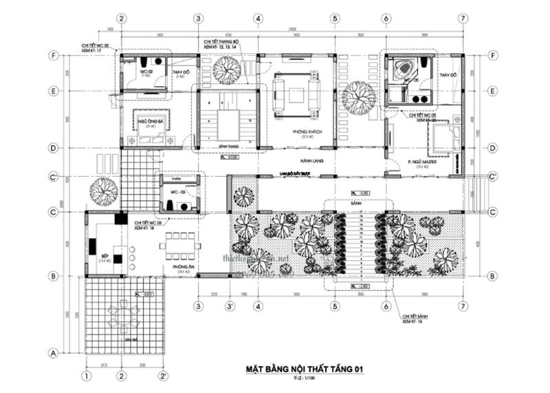
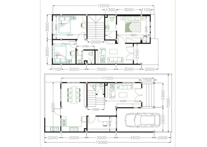
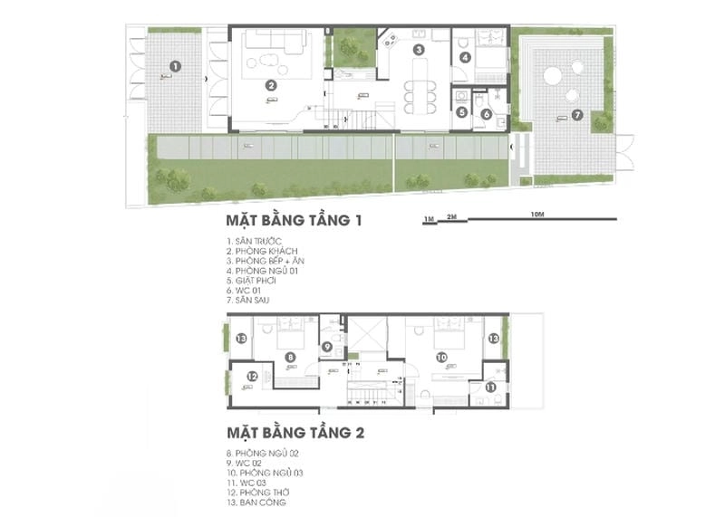
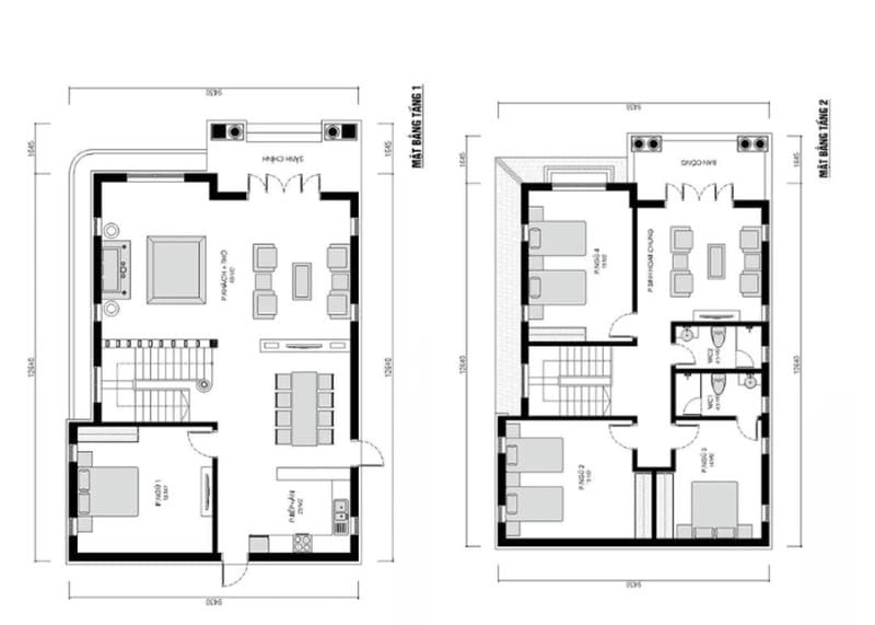
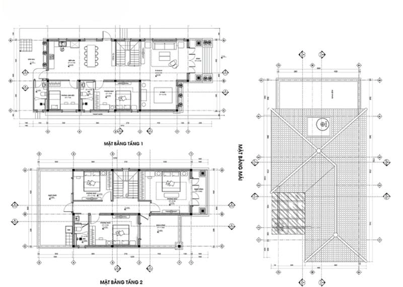
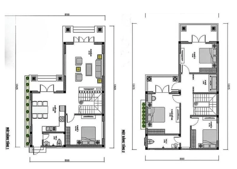
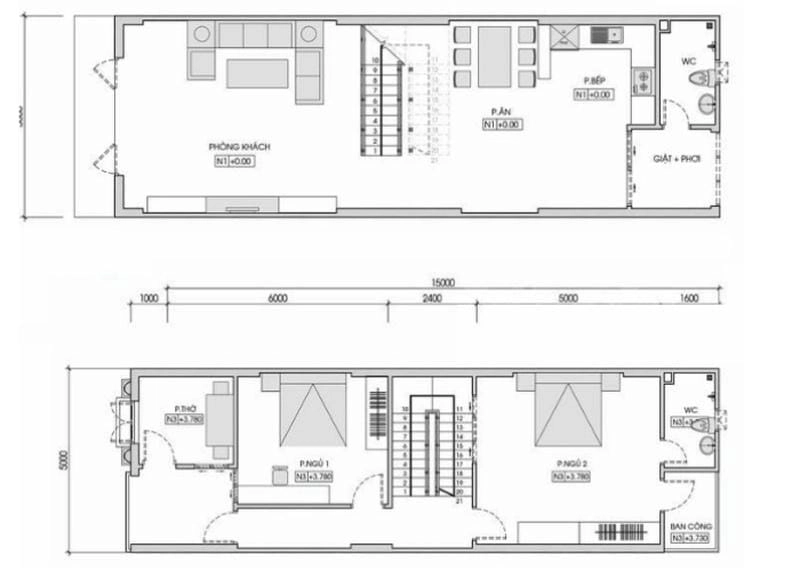
Một số mẫu bản vẽ nhà 2 tầng đẹp, công năng đầy đủ
 
  
  
  
  
  
  
  
  
  
  
  
  
  
  
  
  
  
  
  
  
  
  
  
  
  
  
  
  
  
  
  
  
  
 >>> Xem thêm tại: Mẫu nhà mặt tiền 6m - Tối ưu không gian, đẹp hiện đại
Lưu ý khi thiết kế bản vẽ nhà 2 tầng
Để có được một bản vẽ nhà 2 tầng hoàn chỉnh, tối ưu và phù hợp với nhu cầu, bạn cần đặc biệt lưu ý những điểm sau:
Xác định rõ nhu cầu và công năng sử dụng
Trước khi bắt tay vào thiết kế, hãy liệt kê chi tiết các phòng chức năng bạn cần (số lượng phòng ngủ, phòng khách, bếp, WC, phòng thờ, phòng sinh hoạt chung, sân phơi, gara...). Đồng thời, hãy xác định số lượng thành viên trong gia đình và thói quen sinh hoạt để kiến trúc sư có thể bố trí không gian hợp lý nhất. Ví dụ, nếu có người lớn tuổi, nên bố trí phòng ngủ ở tầng trệt.
Tối ưu hóa không gian và ánh sáng tự nhiên
- Bố trí mặt bằng hợp lý: Sắp xếp các khu vực chức năng liên thông để tạo cảm giác rộng rãi, thông thoáng. Tránh các không gian "chết" hoặc quá nhiều vách ngăn.
- Tận dụng ánh sáng và thông gió: Đảm bảo có đủ cửa sổ, ban công, và nếu cần, thiết kế giếng trời để đưa ánh sáng và không khí vào sâu bên trong nhà, đặc biệt với những lô đất có chiều ngang hẹp. Bản vẽ nhà 2 tầng lý tưởng luôn ưu tiên yếu tố này.
Lựa chọn phong cách kiến trúc phù hợp
Phong cách kiến trúc nên hài hòa với sở thích của gia đình và cảnh quan xung quanh.
- Nhà 2 tầng hiện đại: Ưu tiên đường nét đơn giản, hình khối mạnh mẽ, vật liệu kính, bê tông, sắt.
- Nhà 2 tầng tân cổ điển: Kết hợp nét cổ điển (phào chỉ, hoa văn nhẹ nhàng) với sự tinh tế của hiện đại.
- Nhà 2 tầng mái thái/mái nhật: Mang lại vẻ đẹp truyền thống nhưng vẫn rất thanh lịch, giúp thoát nước tốt và chống nóng hiệu quả.
Chú trọng kết cấu và móng nhà
Một bản vẽ nhà 2 tầng chuyên nghiệp sẽ bao gồm các tính toán chi tiết về kết cấu móng, cột, dầm, sàn. Móng nhà phải đảm bảo chịu được tải trọng của 2 tầng và ổn định trên nền đất. Việc tính toán kết cấu chính xác sẽ đảm bảo sự an toàn và bền vững cho toàn bộ công trình.
Tính toán chi phí và ngân sách
Thiết kế bản vẽ cần đi đôi với việc dự trù kinh phí xây dựng. Hãy trao đổi với kiến trúc sư về ngân sách dự kiến để họ có thể đưa ra các giải pháp vật liệu và thiết kế phù hợp, tránh phát sinh chi phí quá lớn trong quá trình thi công.
Lựa chọn đơn vị thiết kế uy tín
Để có được một bản vẽ nhà 2 tầng chất lượng, chuyên nghiệp và đúng ý, việc lựa chọn một công ty kiến trúc có kinh nghiệm, đội ngũ kiến trúc sư giỏi là rất quan trọng. Họ sẽ giúp bạn biến ý tưởng thành hiện thực, giải quyết các vấn đề kỹ thuật và đảm bảo công năng sử dụng tối ưu.
Lựa chọn đúng bản vẽ nhà 2 tầng sẽ giúp tiết kiệm thời gian, công sức và chi phí xây dựng. Đừng quên cân nhắc công năng, thẩm mỹ và phù hợp với nhu cầu thực tế của gia đình bạn.
 
  02/07/2025
02/07/2025  
 